Guest User
  • Sistemi Hybrid (123)
    • Hybrid PRO certificato (29)
    • Hybrid residenziale certificato (94)

  • Generatori (524)
    • Climatizzatori VRF (4)
    • Generatori Gas-Gasolio (314)
    • Generatori a Biomassa (46)
    • Generatori elettrici (21)
    • Pompe di calore (312)

  • Solare termico (195)
      • Vitosol 100/200-FM (195)

  • Produzione sanitaria (475)
    • Accumulo combinato con produzione istantanea (24)
    • Accumulo tecnico con produttore istantaneo (91)
    • Bollitore bivalente (152)
    • Bollitore monovalente (107)
    • Sistemi con scambiatore esterno per accumuli sanitari (32)
    • Sistemi integrati nel generatore (102)

  • Circuiti (485)
      • Diretto Caldo (216)
      • Diretto Caldo/Freddo (156)
      • Diretto Freddo (26)
      • Miscelato Caldo (254)
      • Miscelato Caldo/Freddo (51)

  • Regolazioni (479)
    • Regolazioni ambienti (289)
    • Regolazioni generatori (402)
    • Regolazioni impianti (272)

  • Ventilazione meccanica controllata (5)
      • Unità  HRI (3)
      • Vitoclima Micro DX (2)

  • Completamenti d'impianto (35)
    • Altri completamenti d'impianto (2)
    • Sistemi stoccaggio pellet (7)
    • Terminali (26)

  • Altro (480)
    • Termoregolazione (480)
      • Vi-Energy Plan (19)

Elenco Schemi

Risultato: 535 schemi
IT0001124
IT0001124

Impianto ibrido tipo Hybridcell-LS con Vitocal 200-S 201.D in abbinamento a Vitodens 200-W B2HF/B2HH per produzione sanitaria mediante Solarcell MAX. Termoregolazione esterna ambienti/circuiti con comando per avvio riscaldamento.

Numero di distinte: 1

Vitocal 200-S 201.D Vitodens 200-W B2HF/B2HH
logo 1
IT0001125
IT0001125

Impianto ibrido tipo Hybridcell-LS con Vitocal 200-S 201.D in abbinamento a Vitodens 200-W B2HF/B2HH per produzione sanitaria con Solarcell MAX. Gestione riscaldamento di circuito diretto (CR1) e due circuiti miscelati (CR2+CR3) con comandi Smart Home da termoregolazione esterna ambienti

Numero di distinte: 3

Vitocal 200-S 201.D Vitodens 200-W B2HF/B2HH
logo 1 logo 2
IT0001126
IT0001126

Impianto con Vitocal 200-S 201.D con gestione climatica di un circuito in diretta di riscaldamento. Produzione sanitaria con Solarcell MAX R2BC-HP in abbinamento solare termico.

Numero di distinte: 1

Vitocal 200-S 201.D Vitosol 100/200-FM
logo 1
IT0001131
IT0001131

Impianto con Vitocal 200-S 201.D per produzione sanitaria con Solarcell MAX in abbinamento ad impianto solare. Gestione climatica riscaldamento di circuito diretto (CR1) e due circuiti miscelati (CR2+CR3).

Numero di distinte: 1

Vitocal 200-S 201.D Vitosol 100/200-FM
logo 1 logo 2
IT0001136
IT0001136

Impianto con Vitocal 200-S 201.D per produzione sanitario con Solarcell MAX. Gestione climatica riscaldamento di due miscelati radiante (CR2+CR3) e di un diretto termoarredi (CR1). Sistema con stufetta a biomassa ad integrazione sanitaria e riscaldamento.

Numero di distinte: 1

Vitocal 200-S 201.D Biomassa generica
logo 1 logo 2
IT0001142
IT0001142

Impianto ibrido tipo Hybridcell-LS con Vitocal 200-S 201.D in abbinamento a Vitodens 200-W B2HF/B2HH per produzione sanitaria con Solarcell MAX. Stufa a biomassa e solare termico con Solarcell Total in preriscaldo sanitario e riscaldamento. Gestione climatica riscaldamento di due circuiti miscelati.

Numero di distinte: 1

Vitocal 200-S 201.D Vitodens 200-W B2HF/B2HH Biomassa generica Vitosol 100/200-FM
logo 2
IT0001201
IT0001201

Impianto con Vitocal 200-S 201.D per produzione sanitaria con Vitocel 100-V CVWA. Gestione climatica di circuito miscelato caldo per radiante (CR2) e di circuito diretto (CR1) per riscaldamento piscina estiva con comando Smart Home.

Numero di distinte: 1

Vitocal 200-S 201.D
logo 1 logo 2
IT0001213
IT0001213

Impianto ibrido con Vitocal 200-S 201.D in cascata in abbinamento a Vitodens 200-W B2HF/B2HH per produzione sanitaria con Vitocell 100-B e solare termico. Gestione diretto caldo (A1 caldaia) e due miscelati radianti (CR2+CR3 PdC) e caldo/freddo di diretto Ventilconvetori (CRF1 PdC) con comandi di avvio da termoregolazione esterna ambienti.

Numero di distinte: 1

Vitocal 200-S 201.D Vitodens 200-W B2HF/B2HH Vitosol 100/200-FM
logo 1 logo 1 logo 2
IT0001216
IT0001216

Impianto ibrido centralizzato con Vitocal 200-S 201.D in cascata con gestione climatica di montante di distribuzione caldo/freddo. Vitodens 200-W B2HF/B2HH a supporto riscaldamento e produzione sanitaria con Vitocell 100-B in abbinamento ad impianto solare termico.

Numero di distinte: 1

Vitocal 200-S 201.D Vitodens 200-W B2HF/B2HH Vitosol 100/200-FM
logo 1
IT0001223
IT0001223

Impianto ibrido con Vitocal 200-S 201.D in cascata in abbinamento a Vitodens 200-W B2HF/B2HH. Produzione sanitaria con caldaia in abbinamento a Solarcell MAX e PdC Master in preriscaldo. Termoregolazione esterna ambienti/circuiti con comando di avvio estate ed avvio inverno.

Numero di distinte: 1

Vitocal 200-S 201.D Vitocal 200-S 201.D Vitodens 200-W B2HF/B2HH
logo 1
IT0001240
IT0001240

Impianto con Vitocal 200-S 201.D in cascata in abbinamento a Vitodens 200-W B2HF/B2HH. Produzione sanitaria con caldaia in abbinamento a due Solarcell MAX in perfetto parallelo idraulico e PdC in preriscaldo. Termoregolazione esterna ambienti/circuiti con comando di avvio estate ed avvio inverno.

Numero di distinte: 1

Vitocal 200-S 201.D Vitodens 200-W B2HF/B2HH
logo 1
IT0001246
IT0001246

Impianto con Vitocal 200-S 201.D in cascata per produzione sanitaria mediante più Solarcell MAX in parallelo idraulico in abbinamento a solare termico. Termoregolazione esterna ambienti/circuiti con per comandi Smart Home per avvio inverno ed avvio estate.

Numero di distinte: 1

Vitocal 200-S 201.D Vitosol 100/200-FM
logo 1
IT0001249
IT0001249

Impianto centralizzato ibrido con Vitocal 200-S 201.D in cascata in abbinamento a Vitodens 200-W B2HF/B2HH. Gestione climatica di montante caldo. Produzione sanitaria con Vitocal Master in preriscaldo a Vitodens mediante Solarcell MAX.

Numero di distinte: 1

Vitocal 200-S 201.D Vitocal 200-S 201.D Vitodens 200-W B2HF/B2HH
logo 1
IT0001251
IT0001251

Impianto centralizzato con Vitocal 200-S AWB-E in cascata per produzione sanitaria con più Solarcell MAX in parallelo idraulico in abbinamento ad impianto solare termico. Gestione di circolatore montante in climatica o con comando Smart Home da termoregolazione esterna ambienti.

Numero di distinte: 1

Vitocal 200-S 201.D Vitosol 100/200-FM
logo 1
IT0001286
IT0001286

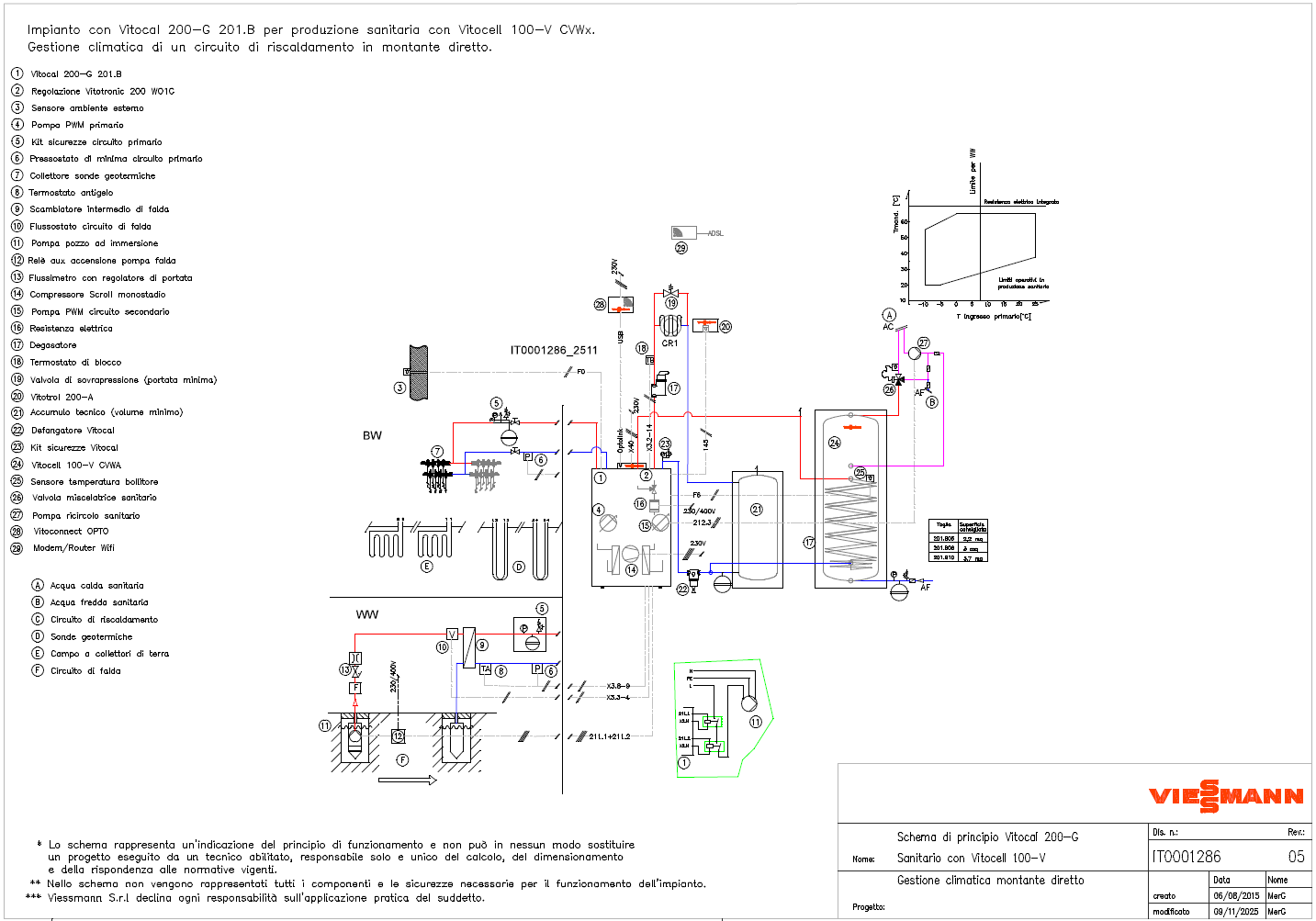
Impianto con Vitocal 200-G 201.B per produzione sanitaria con Vitocell 100-V. Riscaldamento con gestione climatica di circuito in montante diretto (CR1).

Numero di distinte: 1

Vitocal 200-G 201.B
logo 1
IT0001289
IT0001289

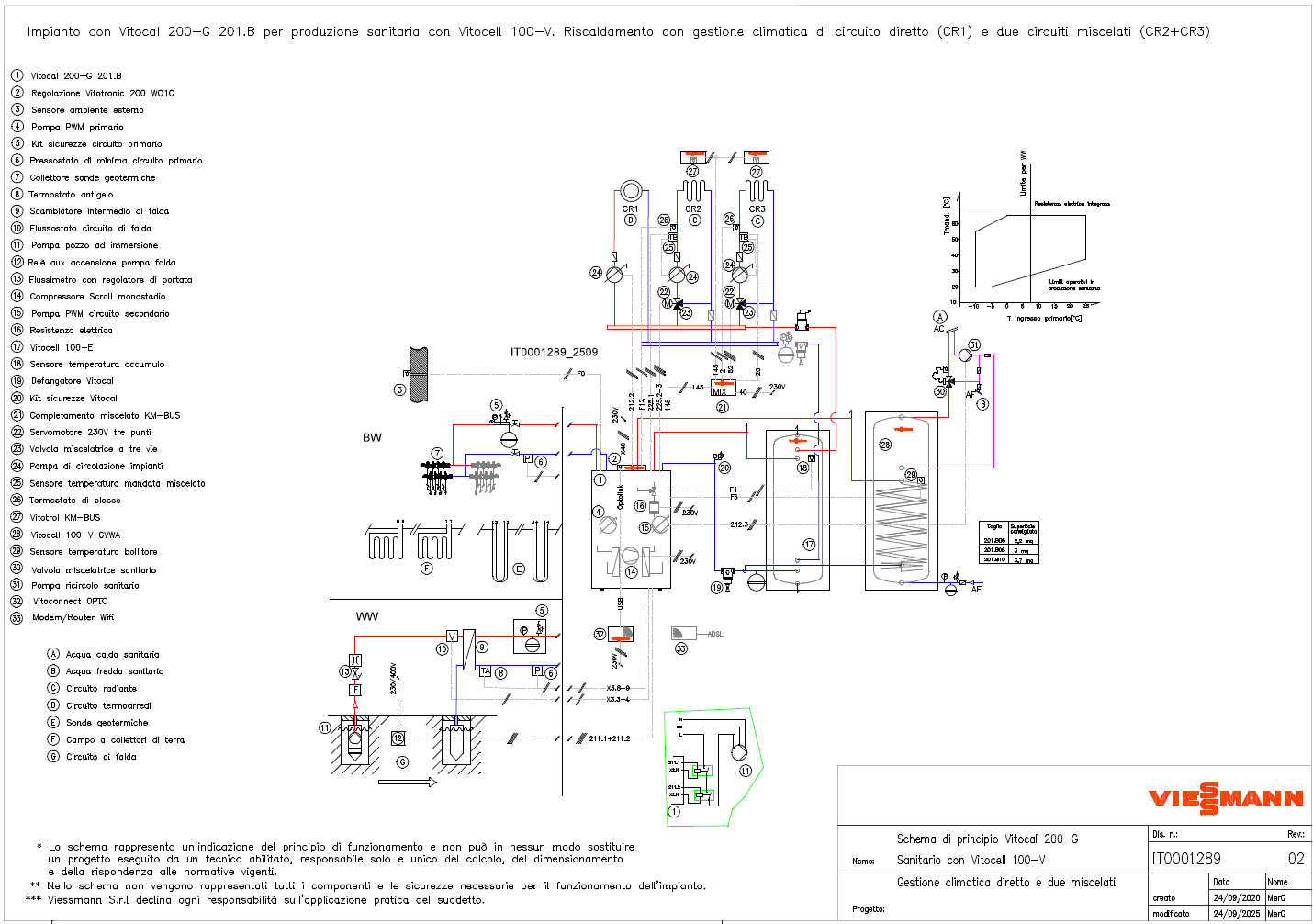
Impianto con Vitocal 200-G 201.B per produzione sanitaria con Vitocell 100-V. Riscaldamento con gestione climatica di circuito diretto (CR1) e due circuiti miscelati (CR2+CR3).

Numero di distinte: 2

Vitocal 200-G 201.B
logo 1 logo 2
IT0001293
IT0001293

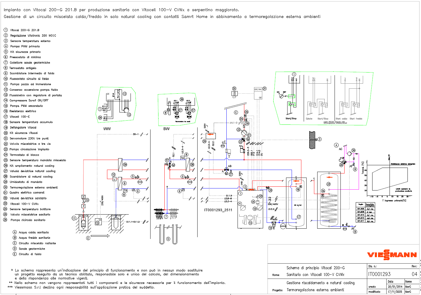
Impianto con Vitocal 200-G 201.B per produzione sanitaria con Vitocell 100-V CVWx a serpentino maggiorato. Gestione di un circuito miscelato caldo/freddo in solo natural cooling con contatti Smart Home in abbinamento a termoregolazione esterna ambienti.

Numero di distinte: 1

Vitocal 200-G 201.B
logo 1
IT0001294
IT0001294

Impianto con Vitocal 200-G 201.B terra/acqua per produzione sanitaria con Vitocell 100-V CVWx a serpentino maggiorato. Gestione climatica di un circuito miscelato di riscaldamento e raffrescamento con Box Natural Cooling per radiante con deumidificatore ad espansione diretta.

Numero di distinte: 1

Vitocal 200-G 201.B
logo 1
IT0001314
IT0001314

Impianto con Vitocal 222-S 221.C per produzione sanitaria con bollitore integrato. Completamento di montaggio con miscelatore integrato in macchina per la gestione climatica riscaldamento di diretto e miscelato con accumulo inerziale sul ritorno.

Numero di distinte: 1

Vitocal 222-S 221.C
logo 1 logo 1
IT0001323
IT0001323

Impianto con Vitocal 222-S 221.C per produzione sanitaria con bollitore integrato. Gestione climatica di un circuito diretto di riscaldamento.

Numero di distinte: 1

Vitocal 222-S 221.C
logo 1
IT0001329
IT0001329

Impianto con Vitocal 222-S 221.C per produzione sanitaria con bollitore integrato. Gestione climatica riscaldamento/raffrescamento per impianto a pavimento con deumidificatore ad espansione diretta per il controllo dell'umidità in ambiente.

Numero di distinte: 1

Vitocal 222-S 221.C
logo 1
IT0001331
IT0001331

Impianto con Vitocal 222-S 221.C con bollitore sanitario integrato. Termoregolazione esterna circuiti/ambienti con comando avvio inverno e comando avvio estate con puffer come disgiuntore.

Numero di distinte: 6

Vitocal 222-S 221.C
logo 1
IT0001332
IT0001332

Impianto con Vitocal 222-S 221.C per riscaldamento/raffreddamento e sanitario con bollitore integrato. Termoregolazione esterna ambienti con comandi Smart Home per avvio inverno e avvio estate.

Numero di distinte: 1

Vitocal 222-S 221.C
logo 1
IT0001347
IT0001347

Impianto con Vitocal 300/350-G terra/acqua per sanitario con scambiatore esterno, lancia di carico e Vitocell 100-L. Gestione climatica riscaldamento di due circuiti miscelati (CR2+CR3) e di un diretto (CR1). Polivalenza idraulica a recupero totale in active cooling per produzione acqua refrigerata in puffer separato per circuito freddo a ventilconvettori.

Numero di distinte: 2

Vitocal 300-G 301.A21-45 Vitocal 350-G 351.B
logo 1 logo 1 logo 2