-
Sistemi Hybrid (112)
-
Hybrid PRO certificato (25)
-
Hybrid residenziale certificato (87)
-
-
Generatori (505)
-
Climatizzatori VRF (4)
-
Generatori Gas-Gasolio (317)
-
Generatori a Biomassa (42)
-
Generatori elettrici (21)
-
Pompe di calore (288)
-
-
Solare termico (195)
- Vitosol 100/200-FM (195)
-
Produzione sanitaria (462)
-
Accumulo combinato con produzione istantanea (23)
-
Accumulo tecnico con produttore istantaneo (83)
-
Bollitore bivalente (154)
-
Bollitore monovalente (95)
-
Sistemi con scambiatore esterno per accumuli sanitari (34)
-
Sistemi integrati nel generatore (106)
-
-
Circuiti (467)
- Diretto Caldo (220)
- Diretto Caldo/Freddo (146)
- Diretto Freddo (21)
- Miscelato Caldo (236)
- Miscelato Caldo/Freddo (49)
-
Regolazioni (465)
-
Regolazioni ambienti (278)
-
Regolazioni generatori (379)
-
Regolazioni impianti (285)
-
-
Ventilazione meccanica controllata (7)
- Unità HRI (3)
- Vitoclima Micro DX (2)
- Vitovent 200-C (2)
-
Completamenti d'impianto (35)
-
Altri completamenti d'impianto (2)
-
Sistemi stoccaggio pellet (7)
-
Terminali (26)
-
-
Altro (461)
-
Termoregolazione (461)
- Vi-Energy Plan (25)
-
Elenco Schemi

IT0000006
Impianto con Vitoladens 300-T VW3B <35 kW per produzione sanitaria con Vitocell 100-B in abbinamento ad impianto solare termico. Gestione climatica di un un circuito diretto di riscaldamento
Numero di distinte: 1


IT0000009
Impianto con Vitoladens 300-T VW3B <35 kW per produzione ACS con bollitore bivalente integrato dal solare termico con regolazione SM1A, n.1 circuito di riscaldamento diretto e n.2 circuiti miscelati comandati da Vitotrol RF
Numero di distinte: 2



IT0000013
Vitoladens 300-C per produzione ACS con bollitore bivalente integrato dal solare termico con modulo SM1A e n.1 circuito di riscaldamento diretto.
Numero di distinte: 1


IT0000015
Vitoladens 300-C circuito riscaldamento con N.1 circuito miscelato, N.1 circuito diretto e produzione ACS con bollitore bivalente e integrazione solare ACS
Numero di distinte: 2



IT0000017
Vitoladens 300-C per produzione ACS con bollitore bivalente integrato dal solare termico con modulo SM1A, n.2 circuiti di riscaldamento miscelati e n.1 circuito di riscaldamento diretto
Numero di distinte: 1



IT0000023
Impianto con Vitorondens 200-T BR2A <35 kW per produzione ACS con bollitore bivalente integrato dal solare termico con modulo SM1A e n.1 circuito di riscaldamento diretto
Numero di distinte: 2


IT0000024
Impianto con Vitorondens 200-T BR2A <35 kW per produzione sanitaria con Vitocell 100-B in abbinamento ad impianto solare termico. Gestione climatica di circuito diretto (A1) e circuito miscelato (M1).
Numero di distinte: 1



IT0000025
Impianto con Vitorondens 200-T BR2A <35 kW per produzione ACS con bollitore bivalente integrato dal solare termico con regolazione SM1, n.1 circuito di riscaldamento diretto e n.2 circuiti miscelati comandati da Vitotrol 200RF e Vitotrol 300RF
Numero di distinte: 2



IT0000039
Impianto con Vitocrossal 300 CU3A <35 kW per produzione ACS con bollitore bivalente integrato dal solare termico con modulo SM1A e n.1 circuito di riscaldamento diretto
Numero di distinte: 2


IT0000045
Impianto con Vitocrossal 300 CU3A <35 kW per produzione ACS con bollitore bivalente integrato dal solare termico con regolazione SM1A, n.1 circuito di riscaldamento diretto e n.2 circuiti miscelati comandati da Vitotrol RF
Numero di distinte: 2



IT0000046
Impianto con Vitocrossal CU3A<35 kW con solare termico per integrazione ACS e riscaldamento con Vitocell 100-B e Vitocell 140-E. Gestione climatica di due circuiti miscelati e di un circuito diretto termostatico.
Numero di distinte: 2



IT0000048
Impianto con Vitocrossal 300 CU3A <35 kW con gestione climatica di un circuito miscelato. Produzione sanitaria con Vitocell 340/360-M o Solarcell Total HSK in abbinamento ad impianto solare termico.
Numero di distinte: 2


IT0000276
Impianto con Vitodens 200-W B2HA 49-150 kW con gestione climatica di due circuiti di riscaldamento miscelati e di un diretto. Produzione di acqua calda sanitaria con bollitore bivalente Solarcell BIV R2BC e impianto solare termico ad integrazione.
Numero di distinte: 2



IT0000279
Impianto con Vitodens 200-W B2HA 45-99 kW con gestione climatica di due circuiti di riscaldamento miscelati e di un diretto. Produzione di acqua calda sanitaria con Vitocell 100-V. Impianto solare termico per integrazione con Vitocell 100-V in preriscaldo.
Numero di distinte: 2



IT0000309
Impianto con Vitomodul 200-W per installazione a parete, per produzione sanitaria con n°2 Vitocell 100-V in parallelo. Gestione climatica di n°2 circuiti miscelati.
Numero di distinte: 3


IT0000311
Vitomodul 200-W con n.2 circuiti miscelati, produzione ACS con n.2 bollitori bivalenti in parallelo e integrazione solare termico ACS
Numero di distinte: 3


IT0000312
Vitomodul 200-W con N.2 circuiti miscelati, produzione ACS con n.2 bollitori monovalenti in parallelo e integrazione solare termico ACS con n.2 bollitori monovalenti in parallelo in serie a bollitori di caldaia.
Numero di distinte: 3


IT0000320
Impianto con Vitomodul 200-W da esterno, Vitotronic 200-H HK3B per la gestione climatica di due circuiti miscelati. Produzione ACS mediante n°2 Vitocell 100-V in parallelo. Impianto solare termico ACS in preriscaldo con n°2 Vitocell 100-V in parallelo
Numero di distinte: 1


IT0000363
Impianto centralizzato con Vitocal 300/350-G per solo riscaldamento con gestione climatica circuito diretto
Numero di distinte: 1


IT0000399
Impianto con Vitocal 300-G 301.C per produzione sanitaria con Vitocell 100-V CVWA. Gestione climatica di un circuito miscelato di riscaldamento e raffrescamento in natural cooling con deumidificatori ad espansione diretta
Numero di distinte: 2


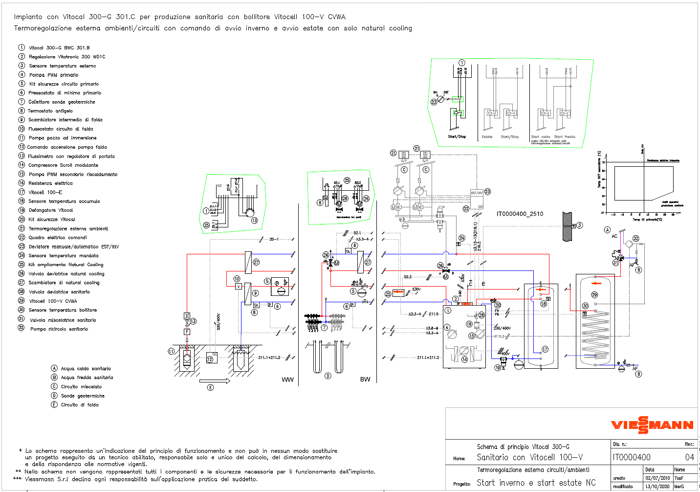
IT0000400
Impianto con Vitocal 300-G 301.C per produzione sanitaria con Vitocell 100-V CVWA. Termoregolazione esterna ambienti/circuiti con comando di avvio inverno ed avvio estate con solo natural cooling.
Numero di distinte: 2


IT0000412
Impianto con Vitocal 300-G 301.C per produzione sanitaria con Vitocell 100-V CVWA. Gestione climatica riscaldamento di circuito diretto (CR1) e due circuiti miscelati (CR2+CR3).
Numero di distinte: 2



IT0000417
Impianto con Vitocal 300-G 301.C per produzione sanitaria con Solarcell WPU. Gestione di un circuito miscelato caldo/freddo in solo natural cooling con contatti Smart Home in abbinamento a termoregolazione esterna ambienti.
Numero di distinte: 1


IT0000445
Impianto con Vitocal 300-G 301.C acqua/acqua per produzione sanitaria con Vitocell 100-V a serpentino maggiorato. Gestione climatica puffer caldo e polivalenza idraulica a recupero totale in active cooling per produzione acqua refrigerata in puffer freddo per impianto con distribuzione a 4 tubi.
Numero di distinte: 1

