Guest User
  • Sistemi Hybrid (120)
    • Hybrid PRO certificato (29)
    • Hybrid residenziale certificato (91)

  • Generatori (517)
    • Climatizzatori VRF (4)
    • Generatori Gas-Gasolio (317)
    • Generatori a Biomassa (45)
    • Generatori elettrici (21)
    • Pompe di calore (299)

  • Solare termico (193)
      • Vitosol 100/200-FM (193)

  • Produzione sanitaria (469)
    • Accumulo combinato con produzione istantanea (24)
    • Accumulo tecnico con produttore istantaneo (87)
    • Bollitore bivalente (152)
    • Bollitore monovalente (103)
    • Sistemi con scambiatore esterno per accumuli sanitari (31)
    • Sistemi integrati nel generatore (104)

  • Circuiti (478)
      • Diretto Caldo (223)
      • Diretto Caldo/Freddo (148)
      • Diretto Freddo (25)
      • Miscelato Caldo (253)
      • Miscelato Caldo/Freddo (48)

  • Regolazioni (471)
    • Regolazioni ambienti (290)
    • Regolazioni generatori (388)
    • Regolazioni impianti (272)

  • Ventilazione meccanica controllata (5)
      • Unità  HRI (3)
      • Vitoclima Micro DX (2)

  • Completamenti d'impianto (34)
    • Altri completamenti d'impianto (2)
    • Sistemi stoccaggio pellet (7)
    • Terminali (25)

  • Altro (473)
    • Termoregolazione (473)
      • Vi-Energy Plan (18)

Elenco Schemi

Risultato: 531 schemi
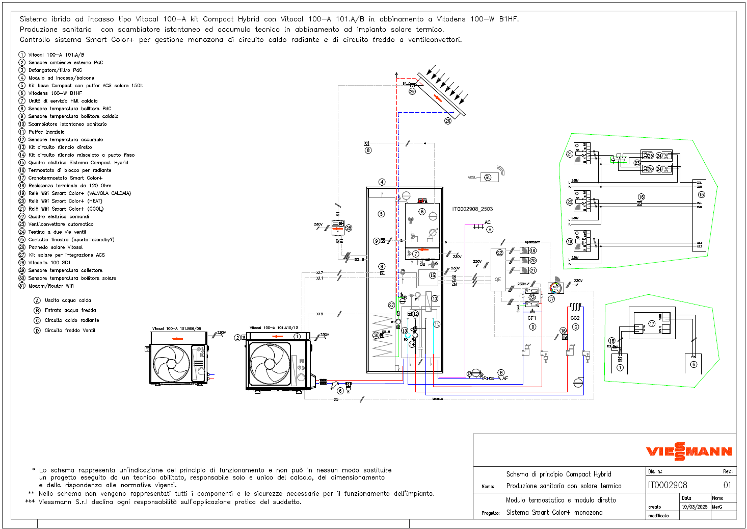
IT0002908
IT0002908

Sistema ibrido ad incasso tipo Vitocal 100-A kit Compact Hybrid con Vitocal 100-A 101.A/B in abbinamento a Vitodens 100-W B1HF/B1HG. Produzione sanitaria con scambiatore istantaneo ed accumulo tecnico in abbinamento ad impianto solare termico. Controllo sistema Smart Color+ per gestione monozona di circuito caldo radiante e di circuito freddo a ventilconvettori.

Numero di distinte: 1

Vitocal 100-A 101.A/B Vitodens 100-W B1HF/B1HG Vitosol 100/200-FM
logo 1 logo 1
IT0002910
IT0002910

Imp. Ibrido Vitocal 100-AT PRO, Vitocrossal 100 CIB e Hybridcell MAX. Produzione sanitaria con Solarcell SPUW e Vitotrans 353 e impianto solare con Vitosol 100/200. Controllo temperatura di mandata impianto tramite regolazione a punto fisso.

Numero di distinte: 1

Vitocrossal 100 CIB Vitosol 100/200-FM Vitocal 100-AT PRO
logo 1 logo 1
IT0002919
IT0002919

Impianto ibrido tipo Hybridcell-LS ONE BASE con Vitocal 200-S 201.E in abbinamento a Vitodens 200-W B2HF/B2HH. Produzione sanitaria con Solarcell MAX HPI. Gestione caldo/freddo su puffer disgiuntore con cambio stagione e consenso di avviamento da termoregolazione esterna ambienti/circuiti.

Numero di distinte: 1

Vitocal 200-S 201.E Vitodens 200-W B2HF/B2HH
logo 0
IT0002926
IT0002926

Vitocal 250-A PRO Hybrid e Vitomodul 200-W B2HA per riscaldamento e produzione sanitaria con termoregolazione esterna per circuiti/ambienti

Numero di distinte: 1

Vitocal 250-A PRO Vitomodul 200-W B2HA
logo 1
IT0002929
IT0002929

Vitocal 250-A PRO Hybrid e Vitodens 200-W B2HA > 80 kW per riscaldamento e produzione sanitaria con termoregolazione esterna per circuiti/ambienti

Numero di distinte: 1

Vitodens 200-W B2HA 120-150 kW Vitodens 200-W B2HA 80-99 kW Vitocal 250-A PRO
logo 1
IT0002931
IT0002931

Impianto con Vitocal 060-A T0E-R290 con bollitore integrato. Impianto con Vitocal 060-A T0S-R290 con bollitore integrato in abbinamento ad impianto solare termico.

Numero di distinte: 2

Vitocal 060-A R290 Vitosol 100/200-FM
IT0002937
IT0002937

Impianto con Vitocal 250-A 251.A in cascata per sanitario/riscaldamento/raffreddamento. Produzione sanitaria con Vitocell 100-E e Vitotrans 353 PZxA. Gestione climatica di circuito miscelato caldo/freddo per impianto minicentralizzato.

Numero di distinte: 1

Vitocal 250-A 251.A
logo 1
IT0002940
IT0002940

Vitocal 250-A PRO Hybrid e Vitocrossal 100 CIB per riscaldamento e produzione sanitaria con termoregolazione esterna per circuiti/ambienti

Numero di distinte: 1

Vitocal 250-A PRO Vitocrossal 100 CIB
logo 1
IT0002941
IT0002941

Vitocal 250-A PRO Hybrid e Vitorondens 200-T J2RA per riscaldamento e produzione sanitaria con termoregolazione esterna per circuiti/ambienti

Numero di distinte: 0

Vitorondens 200-T J2RA Vitocal 250-A PRO
logo 1
IT0002943
IT0002943

Vitocal 250-A PRO Hybrid e Vitocrossal 300 CI3 per riscaldamento e produzione sanitaria con termoregolazione esterna per circuiti/ambienti

Numero di distinte: 0

Vitocal 250-A PRO Vitocrossal 300 CI3
logo 1
IT0002950
IT0002950

Vitocal 250-A PRO in cascata elettronica, impianto solo caldo con Vitodens 200-W B2HA per supporto riscaldamento e sanitario. Produzione sanitaria mediante Vitotrans 353 PBXA in cascata.

Numero di distinte: 1

Vitocal 250-A PRO Vitodens 200-W B2HA 80-99 kW Vitodens 200-W B2HA 49-60 kW Vitodens 200-W B2HA 120-150 kW
logo 3
IT0002952
IT0002952

Impianto con Vitoligno 300-C 18-32 kW per riscaldamento con gestione climatica di due circuiti miscelati. Produzione sanitaria con VVitocal 060-A R290, con funzione di trasferimento da puffer biomassa.

Numero di distinte: 1

Vitoligno 300-C 18-48 kW Vitocal 060-A R290
logo 2
IT0002958
IT0002958

Impianto ibrido tipo Hybridcell-LA One Base con Vitocal 250-A Modular in abbinamento a Vitodens 200-W B2HH. Produzione sanitaria con Solarcell MAX HPI. Gestione climatica riscaldamento di circuito diretto e di tre circuiti miscelati radiante con consensi da termoregolazione ambienti esterna.

Numero di distinte: 1

Vitocal 250-A Modular V101 Vitodens 200-W B2HF/B2HH
logo 1 logo 3
IT0002960
IT0002960

Impianto con Vitocal 200-S 201.E per produzione sanitaria in abbinamento a Vitocell 100-V CVWx. Gestione caldo/freddo su puffer disgiuntore con cambio stagione e consenso di avviamento da termoregolazione esterna ambienti/circuiti.

Numero di distinte: 1

Vitocal 200-S 201.E
logo 0
IT0002961
IT0002961

Impianto ibrido tipo Hybridcell-LA One Base con Vitocal 150-A Modular in abbinamento a Vitodens 100-W B1HG. Produzione sanitaria con Solarcell MAX HPI. Gestione climatica riscaldamento di circuito diretto e di tre circuiti miscelati radiante con consensi da termoregolazione ambienti esterna.

Numero di distinte: 1

Vitocal 150-A Modular V101 Vitodens 100-W B1HF/B1HG
logo 3 logo 1
IT0002962
IT0002962

Imp. Ibrido Vitocal 100-AT PRO e Vitocal 100/200 -A PRO, Vitocrossal 300 CI3 e Hybridcell MAX. Produzione sanitaria con Solarcell SPUW e Vitotrans 353 e impianto solare con Vitosol 100/200. Controllo temperatura di mandata impianto tramite regolazione a punto fisso.

Numero di distinte: 1

Vitocrossal 300 CI3 Vitosol 100/200-FM Vitocal 100-AT PRO Vitocal 100-A PRO MT Vitocal 200-A PRO MT
logo 1 logo 1
IT0002963
IT0002963

Impianto con Vitocal 150-A V105 per produzione sanitaria con Vitocell 100-V CVWx. Gestione climatica riscaldamento di circuito diretto e di tre circuiti miscelati con Vitotrol 100-EH.

Numero di distinte: 1

Vitocal 150-A V105
logo 1 logo 3
IT0002965
IT0002965

GioF

Numero di distinte: 1

Vitocal 100-AT PRO Vitocal 100-A PRO MT Vitocal 200-A PRO MT Vitomodul 200-W B2HA da esterno
logo 2
IT0002966
IT0002966

Hybrid PRO-ES Certificato - Imp. Ibrido Vitocal 100/200-A PRO- Vitocal 100-AT PRO, Vitomodul 200-W da esterno, con singola caldaia >45 kW e Hybridcell MAX da esterno. Controllo temperatura ambienti tramite termoregolazione esterna ambiente /circuiti

Numero di distinte: 1

Vitocal 100-AT PRO Vitocal 100-A PRO MT Vitocal 200-A PRO MT Vitomodul 200-W B2HA da esterno
logo 2
IT0002967
IT0002967

Impianto ibrido tipo Hybridcell-MA One Base con Vitocal 150-A Modular in abbinamento a Vitodens 100-W B1HG. Produzione sanitaria con caldaia e Vitocell 100-B/W in abbinamento ad impianto solare termico. Gestione climatica riscaldamento di circuito diretto con consenso da termoregolazione ambienti esterna.

Numero di distinte: 1

Vitocal 150-A Modular V101 Vitodens 100-W B1HF/B1HG Vitosol 100/200-FM
logo 1
IT0002969
IT0002969

Impianto ibrido tipo Vitocal 250-A Kit Hybrid-EQ con Vitocal 250-A Hybrid in abbinamento a Vitodens 100-W B1HG. Produzione sanitaria con Vitocell 140-E e Vitotrans 353 PZxA in abbinamento a solare termico. Gestione climatica di circuito diretto caldo/freddo ventil e di tre circuiti miscelati caldi per radiante con consensi da termoregolazione ambienti esterna.

Numero di distinte: 1

Vitocal 250-A Hybrid Vitodens 100-W B1HF/B1HG
logo 3 logo 1
IT0002970
IT0002970

Impianto con Vitocal 150-A Modular per produzione sanitaria con Vitocell 100-V CVWx. Gestione climatica riscaldamento di circuito diretto e di tre circuiti miscelati radiante con consensi da termoregolazione ambienti esterna.

Numero di distinte: 1

Vitocal 150-A Modular V101
logo 1 logo 3
IT0002971
IT0002971

Impianto con Vitocal 250-A Modular in abbinamento a Vitocell 120-E per produzione sanitaria tramite Vitotrans 353. Gestione climatica riscaldamento di circuito diretto e di tre circuiti miscelati radiante con consensi da termoregolazione ambienti esterna.

Numero di distinte: 1

Vitocal 250-A Modular V101
logo 3 logo 1
IT0002974
IT0002974

Impianto ibrido tipo Hybridcell-LA One Base con Vitocal 250-A Modular in abbinamento a Vitodens 200-W B2HH. Produzione sanitaria con caldaia e Vitocell 100-B/W in abbinamento ad impianto solare termico. Gestione climatica di circuito diretto caldo/freddo ventil e di tre circuiti miscelati caldi per radiante con consensi da termoregolazione ambienti esterna.

Numero di distinte: 1

Vitocal 250-A Modular V101 Vitodens 200-W B2HF/B2HH Vitosol 100/200-FM
logo 1 logo 3