Guest User
  • Sistemi Hybrid (120)
    • Hybrid PRO certificato (29)
    • Hybrid residenziale certificato (91)

  • Generatori (519)
    • Climatizzatori VRF (4)
    • Generatori Gas-Gasolio (318)
    • Generatori a Biomassa (45)
    • Generatori elettrici (21)
    • Pompe di calore (300)

  • Solare termico (193)
      • Vitosol 100/200-FM (193)

  • Produzione sanitaria (471)
    • Accumulo combinato con produzione istantanea (24)
    • Accumulo tecnico con produttore istantaneo (87)
    • Bollitore bivalente (152)
    • Bollitore monovalente (104)
    • Sistemi con scambiatore esterno per accumuli sanitari (31)
    • Sistemi integrati nel generatore (105)

  • Circuiti (480)
      • Diretto Caldo (223)
      • Diretto Caldo/Freddo (149)
      • Diretto Freddo (25)
      • Miscelato Caldo (254)
      • Miscelato Caldo/Freddo (48)

  • Regolazioni (474)
    • Regolazioni ambienti (291)
    • Regolazioni generatori (391)
    • Regolazioni impianti (273)

  • Ventilazione meccanica controllata (5)
      • Unità  HRI (3)
      • Vitoclima Micro DX (2)

  • Completamenti d'impianto (34)
    • Altri completamenti d'impianto (2)
    • Sistemi stoccaggio pellet (7)
    • Terminali (25)

  • Altro (475)
    • Termoregolazione (475)
      • Vi-Energy Plan (19)

Elenco Schemi

Risultato: 533 schemi
IT0002842
IT0002842

Impianto ibrido tipo Vitodens 100-E Hybrid con Vitocal 100-A 101.B in abbinamento a Vitodens 100-E Compact B1BA con produzione sanitaria istantanea integrata. Controllo sistema ibrido tramite Smart Color+ per gestione impianto con due zone a radiatori media temperatura.

Numero di distinte: 1

Vitocal 100-A 101.A/B Vitodens 100-E Compact B1BA
logo 1
IT0002843
IT0002843

Vitodens 100-W B1KF/B1KG/Vitodens 111-W B1LF/B1LG con gestione climatica di un circuito di riscaldamento diretto gestito con sistema Open Therm tipo Smart Color+

Numero di distinte: 2

Vitodens 100-W B1KF//B1KG Vitodens 111-W B1LF//B1HG
logo 1
IT0002844
IT0002844

Impianto Vitodens 100-W B1KF/B1KG/Vitodens 111-W B1LF/B1LG con produzione sanitaria integrata e controllo di n.3 circuiti di riscaldamento diretti con valvole di zona. Impianto di riscaldamento gestito con sistema Open Therm tipo Smart Color+

Numero di distinte: 2

Vitodens 100-W B1KF//B1KG Vitodens 111-W B1LF//B1HG
logo 3
IT0002845
IT0002845

Impianto Vitodens 100-W B1KF/B1KG/Vitodens 111-W B1LF/B1LG con produzione sanitaria integrata e controllo di n.3 circuiti di riscaldamento diretti con valvole di zona. Impianto di riscaldamento gestito con sistema Open Therm tipo Smart Color+

Numero di distinte: 2

Vitodens 100-W B1KF//B1KG Vitodens 111-W B1LF//B1HG
logo 3
IT0002846
IT0002846

IImpianto Vitodens 100-W B1KF/B1KG/Vitodens 111-W B1LF/B1LG con produzione sanitaria integrata e controllo di n.3 circuiti di riscaldamento diretti gestiti con sistema Open Therm tipo Smart Color+

Numero di distinte: 2

Vitodens 100-W B1KF//B1KG Vitodens 111-W B1LF//B1HG
logo 3
IT0002847
IT0002847

Impianto Vitodens 100-W B1KF/B1KG/Vitodens 111-W B1LF/B1LG con produzione sanitaria integrata e controllo di n.2 circuiti di riscaldamento diretti con valvole di zona e n.1 circuito miscelato a punto fisso. Impianto di riscaldamento gestito con sistema Open Therm tipo Smart Color+

Numero di distinte: 2

Vitodens 100-W B1KF//B1KG Vitodens 111-W B1LF//B1HG
logo 2 logo 1
IT0002848
IT0002848

Impianto Vitodens 100-W B1KF/B1KG/Vitodens 111-W B1LF/B1LG con produzione sanitaria integrata e controllo di n.1 circuito di riscaldamento diretto con valvole di zona e n.1 circuito miscelato a punto fisso con pompa di rilancio che serve n.2 circuiti con valvola di zona. Impianto di riscaldamento gestito con sistema Open Therm tipo Smart Color+

Numero di distinte: 2

Vitodens 100-W B1KF//B1KG Vitodens 111-W B1LF//B1HG
logo 1 logo 2
IT0002851
IT0002851

Impianto con Vitocal 100-A 101.A/B riscaldamento/raffreddamento e per sanitario con Solarcell MAX in abbinamento ad impianto solare termico. Controllo sistema Smart Color+ per gestione monozona di circuito caldo radiante e di circuito freddo a ventilconvettori.

Numero di distinte: 1

Vitocal 100-A 101.A/B Vitosol 100/200-FM
logo 1 logo 1
IT0002852
IT0002852

Impianto con Vitocal 100-A 101.A/B riscaldamento/raffreddamento e produzione sanitaria con Solarcell WPU. Controllo sistema Smart Color+ per gestione monozona con circuito miscelato a punto fisso caldo/freddo radiante e di cirucito diretto freddo deumidificatore ad espansione diretta.

Numero di distinte: 1

Vitocal 100-A 101.A/B
logo 1 logo 1
IT0002856
IT0002856

Impianto con Vitodens 200-W B2HF/B2HH per produzione sanitaria con Vitocell 100-V in abbinamento a Vitocal 262-A T2W-R290. Gestione climatica riscaldamento di circuito diretto e di circuito miscelato con interblocco da termoregolazione esterna ambienti.

Numero di distinte: 1

Vitodens 200-W B2HF/B2HH Vitocal 262-A R290
logo 1 logo 1
IT0002858
IT0002858

Impianto con Vitodens 200-W B2HF/B2HH per produzione sanitaria con Vitocell 100-V in abbinamento a Vitocal 262-A T2H-R290. Gestione climatica riscaldamento di circuito diretto e di circuito miscelato con Vitotrol 100-E.

Numero di distinte: 1

Vitocal 262-A R290 Vitodens 200-W B2HF/B2HH
logo 1 logo 1
IT0002863
IT0002863

Impianto con Vitocal 262-A T2E-R290 per produzione di acqua calda sanitaria.

Numero di distinte: 1

Vitocal 262-A R290
IT0002864
IT0002864

Impianto con Vitocal 150-A 151.A in cascata per riscaldamento con produzione sanitaria con solo PdC Master in abbinamento a Vitocell 100-V CVWx. Gestione climatica riscaldamento di circuito diretto e di tre circuiti miscelati.

Numero di distinte: 1

Vitocal 150-A 151.A Vitocal 150-A 151.A
logo 1 logo 3
IT0002871
IT0002871

Impianto con Vitocal 100-A 101.A per riscaldamento/raffreddamento montante in diretta e sanitario con sistema Compact ad incasso. Terminali in ambiente ventilconvettori con richiesta ON/OFF a PdC.

Numero di distinte: 1

Vitocal 100-A Kit Compact Vitocal 100-A 101.A/B Vitosol 100/200-FM
logo 1
IT0002872
IT0002872

Impianto ibrido tipo Hybridcell-MA One Base con Vitocal 150-A 151.A in abbinamento a Vitodens 100-W B1HF/B1HG. Produzione sanitaria con Solarcell MAX HPI. Gestione climatica circuito diretto e circuito miscelato con Vitotrol 100-EH.

Numero di distinte: 1

Vitocal 150-A 151.A Vitodens 100-W B1HF/B1HG
logo 1 logo 1
IT0002882
IT0002882

Vitocal 250-A PRO per riscaldamento.

Numero di distinte: 1

Vitocal 250-A PRO
IT0002883
IT0002883

Impianto con Vitocal 100-A 101.A/B riscaldamento/raffreddamento e per sanitario con Solarcell MAX R2BC-HP in abbinamento a Vitocal 262-A T2W R290. Controllo sistema Smart Color+ per gestione monozona di circuito caldo radiante e di circuito freddo a ventilconvettori.

Numero di distinte: 1

Vitocal 100-A 101.A/B Vitocal 262-A R290
logo 1 logo 1
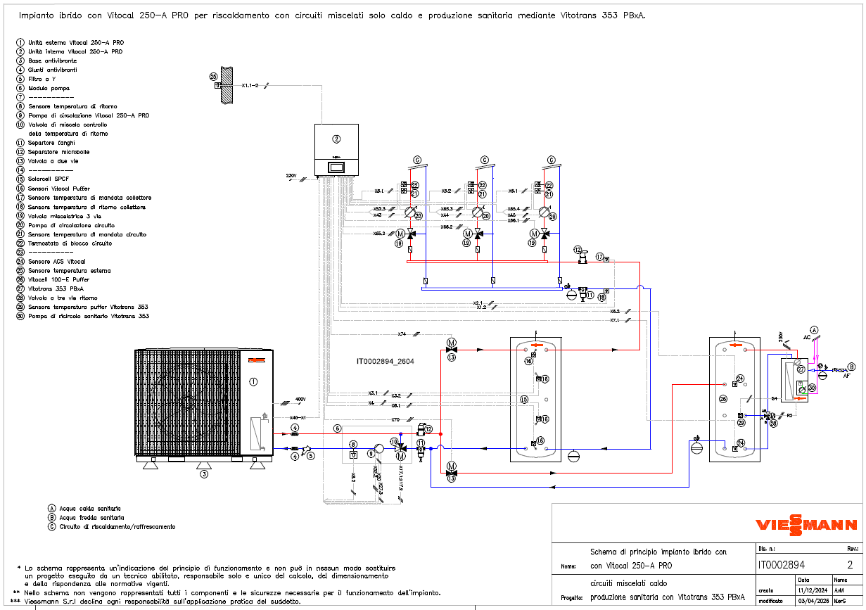
IT0002894
IT0002894

Impianto con Vitocal 250-A PRO per riscaldamento con produzione sanitaria mediante un Vitotrans 353 PBxA

Numero di distinte: 1

Vitocal 250-A PRO
logo 3
IT0002903
IT0002903

Impianto con Vitocal 100-A 101.A/B per riscaldamento/raffreddamento e sanitario con sistema Compact ad incasso. Controllo sistema Smart Color+ per gestione monozona di circuito caldo radiante e di circuito freddo a ventilconvettori.

Numero di distinte: 1

Vitocal 100-A Kit Compact Vitosol 100/200-FM Vitocal 100-A 101.A/B
logo 1 logo 1
IT0002904
IT0002904

Impianto tipo Hybridcell-MS One Base con Vitocal 200-S 201.E in abbinamento a Vitodens 200-W B2HF/B2HH. Produzione sanitaria con Solarcell MAX HPI. Gestione climatica riscaldamenti di un circuito diretto e di un circuito miscelato con Vitotrol 300-E.

Numero di distinte: 3

Vitocal 200-S 201.E Vitodens 200-W B2HF/B2HH
logo 1 logo 1
IT0002907
IT0002907

Impianto con Vitocal 222-S 221.E sanitario con bollitore integrato. Gestione caldo/freddo su puffer disgiuntore con cambio stagione e consenso di avviamento da termoregolazione esterna ambienti/circuiti.

Numero di distinte: 1

Vitocal 222-S 221.E
logo 1
IT0002908
IT0002908

Sistema ibrido ad incasso tipo Vitocal 100-A kit Compact Hybrid con Vitocal 100-A 101.A/B in abbinamento a Vitodens 100-W B1HF/B1HG. Produzione sanitaria con scambiatore istantaneo ed accumulo tecnico in abbinamento ad impianto solare termico. Controllo sistema Smart Color+ per gestione monozona di circuito caldo radiante e di circuito freddo a ventilconvettori.

Numero di distinte: 1

Vitocal 100-A 101.A/B Vitodens 100-W B1HF/B1HG Vitosol 100/200-FM
logo 1 logo 1
IT0002910
IT0002910

Imp. Ibrido Vitocal 100-AT PRO, Vitocrossal 100 CIB e Hybridcell MAX. Produzione sanitaria con Solarcell SPUW e Vitotrans 353 e impianto solare con Vitosol 100/200. Controllo temperatura di mandata impianto tramite regolazione a punto fisso.

Numero di distinte: 1

Vitocrossal 100 CIB Vitosol 100/200-FM Vitocal 100-AT PRO
logo 1 logo 1
IT0002919
IT0002919

Impianto ibrido tipo Hybridcell-LS ONE BASE con Vitocal 200-S 201.E in abbinamento a Vitodens 200-W B2HF/B2HH. Produzione sanitaria con Solarcell MAX HPI. Gestione caldo/freddo su puffer disgiuntore con cambio stagione e consenso di avviamento da termoregolazione esterna ambienti/circuiti.

Numero di distinte: 1

Vitocal 200-S 201.E Vitodens 200-W B2HF/B2HH
logo 0