Guest User
  • Sistemi Hybrid (119)
    • Hybrid PRO certificato (29)
    • Hybrid residenziale certificato (90)

  • Generatori (514)
    • Climatizzatori VRF (4)
    • Generatori Gas-Gasolio (322)
    • Generatori a Biomassa (43)
    • Generatori elettrici (21)
    • Pompe di calore (296)

  • Solare termico (195)
      • Vitosol 100/200-FM (195)

  • Produzione sanitaria (466)
    • Accumulo combinato con produzione istantanea (23)
    • Accumulo tecnico con produttore istantaneo (84)
    • Bollitore bivalente (156)
    • Bollitore monovalente (97)
    • Sistemi con scambiatore esterno per accumuli sanitari (34)
    • Sistemi integrati nel generatore (106)

  • Circuiti (476)
      • Diretto Caldo (223)
      • Diretto Caldo/Freddo (150)
      • Diretto Freddo (22)
      • Miscelato Caldo (240)
      • Miscelato Caldo/Freddo (48)

  • Regolazioni (472)
    • Regolazioni ambienti (279)
    • Regolazioni generatori (386)
    • Regolazioni impianti (281)

  • Ventilazione meccanica controllata (7)
      • Unità  HRI (3)
      • Vitoclima Micro DX (2)
      • Vitovent 200-C (2)

  • Completamenti d'impianto (35)
    • Altri completamenti d'impianto (2)
    • Sistemi stoccaggio pellet (7)
    • Terminali (26)

  • Altro (470)
    • Termoregolazione (470)
      • Vi-Energy Plan (22)

Elenco Schemi

Risultato: 527 schemi
IT0000006
IT0000006

Impianto con Vitoladens 300-T VW3B <35 kW per produzione sanitaria con Vitocell 100-B in abbinamento ad impianto solare termico. Gestione climatica di un un circuito diretto di riscaldamento

Numero di distinte: 3

Vitoladens 300-T VW3B Vitosol 100/200-FM
logo 1
IT0000009
IT0000009

Impianto con Vitoladens 300-T VW3B <35 kW per produzione ACS con bollitore bivalente integrato dal solare termico con regolazione SM1A, n.1 circuito di riscaldamento diretto e n.2 circuiti miscelati comandati da Vitotrol RF

Numero di distinte: 2

Vitoladens 300-T VW3B Vitosol 100/200-FM
logo 1 logo 2
IT0000013
IT0000013

Vitoladens 300-C per produzione ACS con bollitore bivalente integrato dal solare termico con modulo SM1A e n.1 circuito di riscaldamento diretto.

Numero di distinte: 1

Vitoladens 300-C BC3 Vitoladens 300-C J3RA Vitosol 100/200-FM
logo 1
IT0000015
IT0000015

Vitoladens 300-C circuito riscaldamento con N.1 circuito miscelato, N.1 circuito diretto e produzione ACS con bollitore bivalente e integrazione solare ACS

Numero di distinte: 2

Vitoladens 300-C BC3 Vitoladens 300-C J3RA Vitosol 100/200-FM
logo 1 logo 1
IT0000017
IT0000017

Vitoladens 300-C per produzione ACS con bollitore bivalente integrato dal solare termico con modulo SM1A, n.2 circuiti di riscaldamento miscelati e n.1 circuito di riscaldamento diretto

Numero di distinte: 1

Vitoladens 300-C BC3 Vitoladens 300-C J3RA Vitosol 100/200-FM
logo 1 logo 2
IT0000023
IT0000023

Impianto con Vitorondens 200-T BR2A <35 kW per produzione ACS con bollitore bivalente integrato dal solare termico con modulo SM1A e n.1 circuito di riscaldamento diretto

Numero di distinte: 2

Vitorondens 200-T BR2A Vitosol 100/200-FM
logo 1
IT0000024
IT0000024

Impianto con Vitorondens 200-T BR2A <35 kW per produzione sanitaria con Vitocell 100-B in abbinamento ad impianto solare termico. Gestione climatica di circuito diretto (A1) e circuito miscelato (M1).

Numero di distinte: 1

Vitorondens 200-T BR2A Vitosol 100/200-FM
logo 1 logo 1
IT0000025
IT0000025

Impianto con Vitorondens 200-T BR2A <35 kW per produzione ACS con bollitore bivalente integrato dal solare termico con regolazione SM1, n.1 circuito di riscaldamento diretto e n.2 circuiti miscelati comandati da Vitotrol 200RF e Vitotrol 300RF

Numero di distinte: 2

Vitorondens 200-T BR2A Vitosol 100/200-FM
logo 1 logo 2
IT0000039
IT0000039

Impianto con Vitocrossal 300 CU3A <35 kW per produzione ACS con bollitore bivalente integrato dal solare termico con modulo SM1A e n.1 circuito di riscaldamento diretto

Numero di distinte: 2

Vitocrossal 300 CU3A Vitosol 100/200-FM
logo 1
IT0000045
IT0000045

Impianto con Vitocrossal 300 CU3A <35 kW per produzione ACS con bollitore bivalente integrato dal solare termico con regolazione SM1A, n.1 circuito di riscaldamento diretto e n.2 circuiti miscelati comandati da Vitotrol RF

Numero di distinte: 2

Vitocrossal 300 CU3A Vitosol 100/200-FM
logo 1 logo 2
IT0000046
IT0000046

Impianto con Vitocrossal CU3A<35 kW con solare termico per integrazione ACS e riscaldamento con Vitocell 100-B e Vitocell 140-E. Gestione climatica di due circuiti miscelati e di un circuito diretto termostatico.

Numero di distinte: 2

Vitocrossal 300 CU3A Vitosol 100/200-FM
logo 1 logo 2
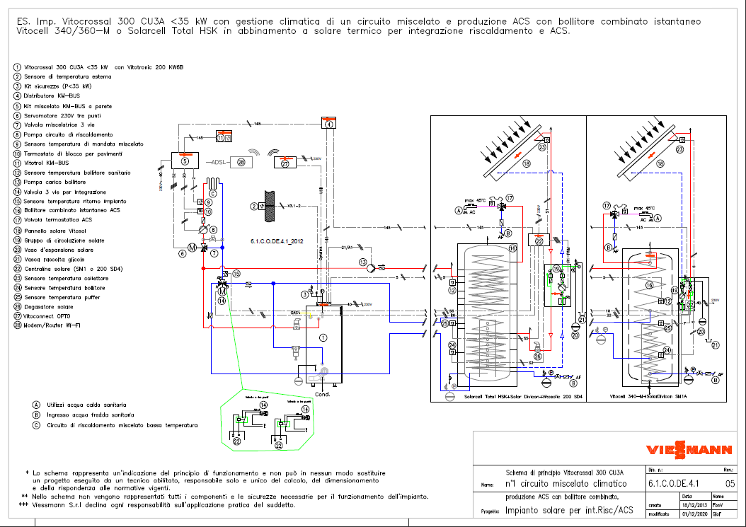
IT0000048
IT0000048

Impianto con Vitocrossal 300 CU3A <35 kW con gestione climatica di un circuito miscelato. Produzione sanitaria con Vitocell 340/360-M o Solarcell Total HSK in abbinamento ad impianto solare termico.

Numero di distinte: 2

Vitocrossal 300 CU3A Vitosol 100/200-FM
logo 1
IT0000276
IT0000276

Impianto con Vitodens 200-W B2HA 49-150 kW con gestione climatica di due circuiti di riscaldamento miscelati e di un diretto. Produzione di acqua calda sanitaria con bollitore bivalente Solarcell BIV R2BC e impianto solare termico ad integrazione.

Numero di distinte: 6

Vitodens 200-W B2HA 49-60 kW Vitodens 200-W B2HA 80-99 kW Vitodens 200-W B2HA 120-150 kW Vitosol 100/200-FM
logo 1 logo 2
IT0000279
IT0000279

Impianto con Vitodens 200-W B2HA 45-99 kW con gestione climatica di due circuiti di riscaldamento miscelati e di un diretto. Produzione di acqua calda sanitaria con Vitocell 100-V. Impianto solare termico per integrazione con Vitocell 100-V in preriscaldo.

Numero di distinte: 2

Vitodens 200-W B2HA 49-60 kW Vitodens 200-W B2HA 80-99 kW Vitosol 100/200-FM
logo 1 logo 2
IT0000309
IT0000309

Impianto con Vitomodul 200-W per installazione a parete, per produzione sanitaria con n°2 Vitocell 100-V in parallelo. Gestione climatica di n°2 circuiti miscelati.

Numero di distinte: 6

Vitomodul 200-W B2HA
logo 2
IT0000311
IT0000311

Vitomodul 200-W con n.2 circuiti miscelati, produzione ACS con n.2 bollitori bivalenti in parallelo e integrazione solare termico ACS

Numero di distinte: 3

Vitomodul 200-W B2HA Vitosol 100/200-FM
logo 2
IT0000312
IT0000312

Vitomodul 200-W con N.2 circuiti miscelati, produzione ACS con n.2 bollitori monovalenti in parallelo e integrazione solare termico ACS con n.2 bollitori monovalenti in parallelo in serie a bollitori di caldaia.

Numero di distinte: 3

Vitomodul 200-W B2HA Vitosol 100/200-FM
logo 2
IT0000320
IT0000320

Impianto con Vitomodul 200-W da esterno, Vitotronic 200-H HK3B per la gestione climatica di due circuiti miscelati. Produzione ACS mediante n°2 Vitocell 100-V in parallelo. Impianto solare termico ACS in preriscaldo con n°2 Vitocell 100-V in parallelo

Numero di distinte: 1

Vitosol 100/200-FM Vitomodul 200-W B2HA da esterno Vitomodul 200-E B2HA
logo 2
IT0000363
IT0000363

Impianto centralizzato con Vitocal 300/350-G per solo riscaldamento con gestione climatica circuito diretto

Numero di distinte: 1

Vitocal 300-G 301.A21-45 Vitocal 350-G 351.B
logo 1
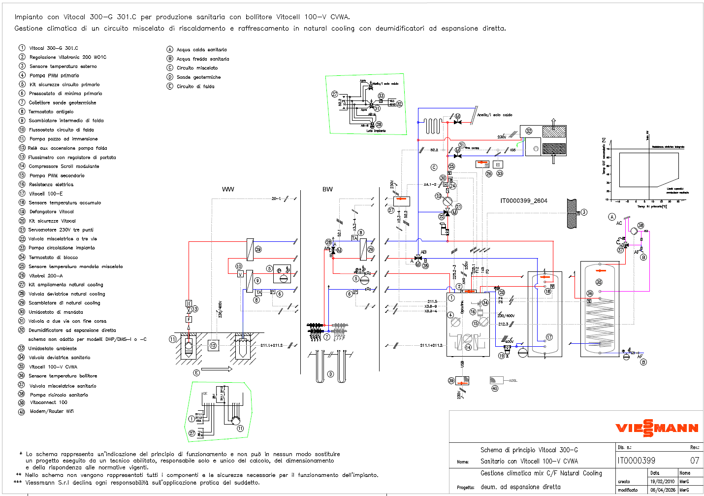
IT0000399
IT0000399

Impianto con Vitocal 300-G 301.C per produzione sanitaria con Vitocell 100-V CVWA. Gestione climatica di un circuito miscelato di riscaldamento e raffrescamento in natural cooling con deumidificatori ad espansione diretta

Numero di distinte: 2

Vitocal 300-G 301.C
logo 1
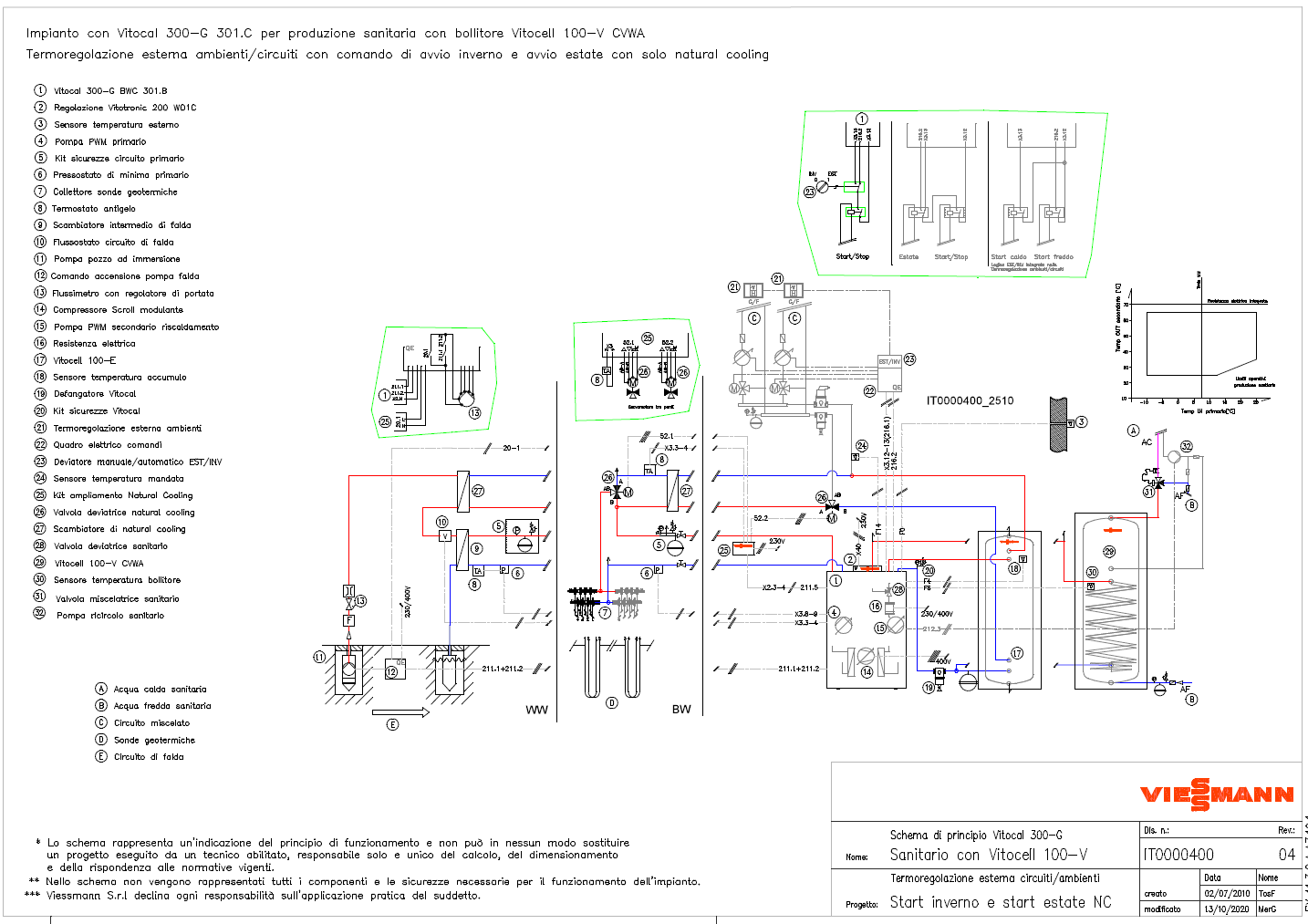
IT0000400
IT0000400

Impianto con Vitocal 300-G 301.C per produzione sanitaria con Vitocell 100-V CVWA. Termoregolazione esterna ambienti/circuiti con comando di avvio inverno ed avvio estate con solo natural cooling.

Numero di distinte: 2

Vitocal 300-G 301.C
logo 2
IT0000412
IT0000412

Impianto con Vitocal 300-G 301.C per produzione sanitaria con Vitocell 100-V CVWA. Gestione climatica riscaldamento di circuito diretto (CR1) e due circuiti miscelati (CR2+CR3).

Numero di distinte: 2

Vitocal 300-G 301.C
logo 1 logo 2
IT0000417
IT0000417

Impianto con Vitocal 300-G 301.C per produzione sanitaria con Solarcell WPU. Gestione di un circuito miscelato caldo/freddo in solo natural cooling con contatti Smart Home in abbinamento a termoregolazione esterna ambienti.

Numero di distinte: 1

Vitocal 300-G 301.C
logo 1
IT0000445
IT0000445

Impianto con Vitocal 300-G 301.C acqua/acqua per produzione sanitaria con Vitocell 100-V a serpentino maggiorato. Gestione climatica puffer caldo e polivalenza idraulica a recupero totale in active cooling per produzione acqua refrigerata in puffer freddo per impianto con distribuzione a 4 tubi.

Numero di distinte: 1

Vitocal 300-G 301.C
logo 1 logo 1